Donner & Asociados

  • 322111162
  • ryan-donner-y-asociados.easybroker.com

EDIFICIO EN VENTA TLALPAN

Viaducto Piedad, Iztacalco

$24,000,000 For Sale

  • 5 Parking spaces
  • 1,300 m² total space
  • 300 m² Lot Size
  • 4 Floors
  • EB-DO3237 ID
Description

Se encuentra a unos metros de la estación del metro Viaducto y se vende completo.
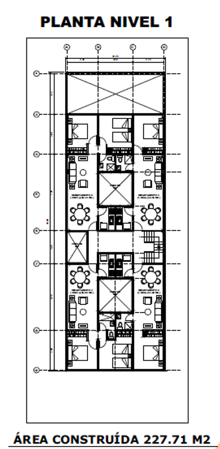
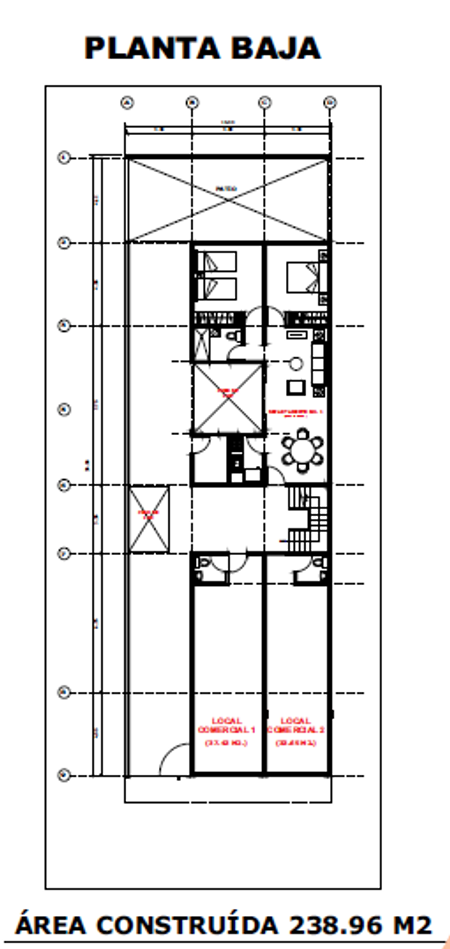
Cuenta con cinco niveles, en la planta baja con dos locales comerciales y estacionamiento.
Del segundo nivel al quinto nivel son diecisiete departamentos de uso habitacional, cuartos de servicio y jaulas de tendido.

Colindancias:
Al norte: 30.00m con lote 43
Al sur : 30.00m con lote 41
Al oriente: 10.00m2 con lotes 17 y 18
Al poniente: 10.00m2 con calzada tlalpan
Superficie de construcción 1,300.00m2.

Amenities
  • Handicap accessible
  • Covered parking
  • Accessibility for elderly
  • Street parking

Donner & Asociados

  • 322111162
  • ryan-donner-y-asociados.easybroker.com

Donner & Asociados

  • 322111162
  • ryan-donner-y-asociados.easybroker.com