Donner & Asociados

  • 322111162
  • ryan-donner-y-asociados.easybroker.com

Departamento en Venta en Real Montejo, Mérida

Real Montejo, Mérida

$1,769,000 For Sale

  • 1 Bedrooms
  • 1 Bathrooms
  • 1 Parking spaces
  • 45.54 m² total space
  • Under Construction Age
  • 2 Floor
  • $1,200 Expenses
  • EB-PJ5722 ID
Description

Conjunto de 72 departamentos y 14 locales comerciales, diseñados para proporcionar un estilo de vida moderno y vanguardista al norte de la ciudad de Mérida, Yucatán. La ubicación estratégica de este desarrollo lo convierte en un lugar ideal para aquellos que buscan estar cerca de todo, con fácil acceso a diversas comodidades y servicios.

El conjunto está compuesto por dos torres que se distribuyen en 3 niveles. En estas torres, se entrelazan espacios comerciales y residenciales, creando un ambiente dinámico y versátil. La combinación de áreas comerciales y residenciales permite a los habitantes tener todo lo necesario para vivir una vida plena y activa sin tener que desplazarse lejos.

La presencia de 14 locales comerciales dentro del conjunto proporciona opciones para diversas actividades y servicios, lo que contribuye a la conveniencia y diversidad de la experiencia de vida. Los 72 departamentos ofrecen opciones de residencia que se adaptan a diferentes necesidades y preferencias, brindando un ambiente cómodo y contemporáneo para sus habitantes.

Los departamentos tienen una construcción desde 45.54 hasta 77.99 metros cuadrados con precios desde $1,699,000 hasta $2,649,000

AMENIDADES: roof garden, pet, friendly, acceso a club deportivo grand real.

Fecha de Entrega: Diciembre 2026
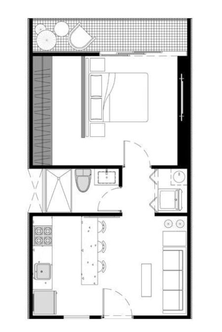
Torre A

Distribución del Departamento.

SEGUNDO NIVEL:
Estacionamiento sin Techar Para 1 Auto
Sala
Comedor
Cocina Integral con Barra
Área de Lavado
Habitación con Espacio Para Closet Vestidor
Baño Compartido
Balcón.

SE ENTREGA CON: Parrilla Eléctrica, Cancel Fijo en Baño, Meseta de Granito y Carpintería Inferior en Cocina.

REQUISISTOS:
Apartado: $20,000
Enganche: 30%
Crédito Bancario y Recurso Propio.

El contrato se deberá firmar a los 7 días posteriores al apartado.

Precio Vigente al 04 de Septiembre 2025
Disponibilidad y precio sujeto a cambio sin previo aviso. Favor de consultar precio actual con su asesor.
El precio de la publicación no incluye gastos notariales, impuestos, gastos de solicitud de créditos, avalúos, cuotas de mantenimiento ni gasto de administración que se genere.
Las imágenes ilustrativas son una guía gráfica parecida al producto final y pueden tener ajustes y modificaciones sin previo aviso.

Amenities
  • Street parking
  • BBQ grill
  • Terrace
  • Accessibility for elderly
  • Closed-Circuit Security System
  • Kitchen
  • Fitted Kitchen
  • Private housing development
  • Smoking allowed
  • Door man
  • 24 Hour Security
  • Handicap accessible

Donner & Asociados

  • 322111162
  • ryan-donner-y-asociados.easybroker.com

Donner & Asociados

  • 322111162
  • ryan-donner-y-asociados.easybroker.com