Donner & Asociados

  • 322111162
  • ryan-donner-y-asociados.easybroker.com

DEPARTAMENTO 202

Observatorio, Miguel Hidalgo

$4,595,000 For Sale

  • 3 Bedrooms
  • 2 Bathrooms
  • 1 Parking spaces
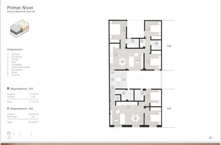
  • 83 m² total space
  • Under Construction Age
  • EB-UL6569 ID
Description

Preventa · Departamento 202 · General Manuel Plata, Col. Observatorio · Miguel Hidalgo

Precio: $4,595,000 MXN
Entrega estimada: Quinto bimestre de 2026
Superficie total: 83 m²
Ubicación: Interior · Segundo piso

Características principales

3 recámaras amplias con excelente iluminación natural

2 baños completos con acabados contemporáneos

Cocina integral abierta con barra

Estancia espaciosa con distribución funcional

1 lugar de estacionamiento

Ubicación interior, ideal para quienes buscan privacidad y tranquilidad

Diseño moderno, cómodo y pensado para familias o inversión

Ubicación

Ubicado sobre General Manuel Plata, colonia Observatorio, Miguel Hidalgo.
Zona con excelente conectividad hacia Constituyentes, Santa Fe y Tacubaya, rodeada de servicios, escuelas y transporte.
Área en constante crecimiento con alta plusvalía proyectada.

Beneficios de invertir en preventa

Precio preferencial y facilidades de pago

Entrega garantizada en 2026

Plusvalía a mediano plazo

Ideal para inversión o para vivir con comodidad y ubicación estratégica

Valentinos Home
Anticipa tu próxima propiedad hoy.
Agenda tu cita y conoce los beneficios de invertir en preventa.

Donner & Asociados

  • 322111162
  • ryan-donner-y-asociados.easybroker.com

Donner & Asociados

  • 322111162
  • ryan-donner-y-asociados.easybroker.com