Donner & Asociados

  • 322111162
  • ryan-donner-y-asociados.easybroker.com

DEPARTAMENTO 201

Observatorio, Miguel Hidalgo

$3,995,000 For Sale

  • 2 Bedrooms
  • 2 Bathrooms
  • 1 Parking spaces
  • 71 m² total space
  • Under Construction Age
  • EB-UL6562 ID
Description

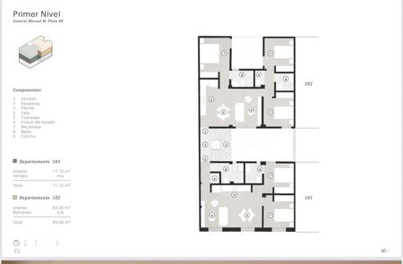
Preventa · Departamento 201 · General Manuel Plata, Col. Observatorio · Miguel Hidalgo

Precio: $3,995,000 MXN
Entrega estimada: Quinto bimestre de 2026
Superficie total: 71 m² habitables
Ubicación: Exterior · Segundo piso

Características principales

2 recámaras amplias con excelente iluminación natural

2 baños completos con acabados modernos

Cocina integral abierta con barra

Estancia con ventanal y vista exterior

1 lugar de estacionamiento

Ubicación exterior con gran ventilación y luz natural

Diseño moderno, funcional y con excelente distribución

Ubicación

En General Manuel Plata, colonia Observatorio, Miguel Hidalgo.
Zona con creciente desarrollo y alta plusvalía, con rápida conexión a Constituyentes, Santa Fe y Tacubaya.
Cerca de servicios, escuelas y vías principales.

Ventajas de invertir en preventa

Precio preferencial y facilidades de pago

Entrega programada para 2026

Plusvalía proyectada en zona de crecimiento

Ideal para inversión o para vivir con confort y ubicación estratégica

Donner & Asociados

  • 322111162
  • ryan-donner-y-asociados.easybroker.com

Donner & Asociados

  • 322111162
  • ryan-donner-y-asociados.easybroker.com