Donner & Asociados

  • 322111162
  • ryan-donner-y-asociados.easybroker.com

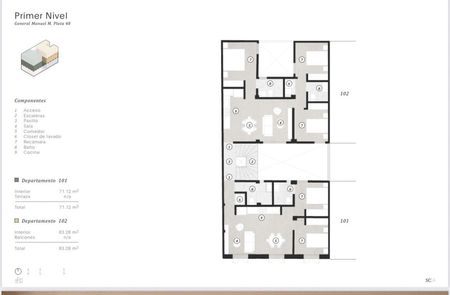
DEPARTAMENTO 102

Observatorio, Miguel Hidalgo

$4,595,000 For Sale

  • 3 Bedrooms
  • 2 Bathrooms
  • 1 Parking spaces
  • 83 m² total space
  • Under Construction Age
  • EB-UL6559 ID
Description

Preventa · Departamento 102 · General Manuel Plata, Col. Observatorio · Miguel Hidalgo

Precio: $4,595,000 MXN
Entrega estimada: Quinto bimestre de 2026
Superficie total: 83 m²
Ubicación: Interior · Primer piso

Características principales

3 recámaras amplias con buena iluminación natural

2 baños completos con acabados contemporáneos

Cocina integral abierta con barra

Estancia espaciosa con distribución funcional

1 lugar de estacionamiento

Ubicación interior, ideal para quienes buscan privacidad y tranquilidad

Diseño moderno, cómodo y pensado para familias o inversión

Ubicación

Ubicado sobre General Manuel Plata, en la colonia Observatorio, Miguel Hidalgo.
Zona con excelente conectividad hacia Constituyentes, Santa Fe y Tacubaya, con amplia oferta de transporte, escuelas y servicios.
Área en constante desarrollo con alta proyección de plusvalía.

Beneficios de invertir en preventa

Precio preferencial y facilidades de pago

Entrega garantizada en 2026

Alta plusvalía proyectada

Ideal para quienes buscan invertir o estrenar vivienda con ubicación estratégica

Valentinos Home
Anticipa tu próxima propiedad hoy.
Agenda tu cita y conoce los beneficios de invertir en preventa.

Donner & Asociados

  • 322111162
  • ryan-donner-y-asociados.easybroker.com

Donner & Asociados

  • 322111162
  • ryan-donner-y-asociados.easybroker.com