Donner & Asociados

  • 322111162
  • ryan-donner-y-asociados.easybroker.com

Consultorio /PREVENTA en Edificio en Prolongaciòn Montejo, Mèrida.

Prolongación Montejo, Mérida

$2,885,168 For Sale

  • 2 Bathrooms
  • 1 Parking spaces
  • 30 m² total space
  • Under Construction Age
  • 1 Floor
  • EB-UH1713 ID
Description

Montejo Vertical es un moderno edificio corporativo de 13 pisos ubicado en el corazón de Prolongación Paseo de Montejo, a la altura de la Colonia México en Mérida, Yucatán. Este desarrollo de usos mixtos combina: locales comerciales, oficinas y consultorios.

Montejo Vertical contarà con:
*Estacionamiento subterraneo
*Planta baja: Lobby y 3 locales comerciales
*Nivel 1 al 3 : 24 consultorios
*Nivel 4: Amenidades: Coworking, terrazaAmenidades
*Nivel 5 al 12: Oficinas
*Nivel 13: Roof Top

*23 consultorios , varias tipologias desde 27 a 58 mt2, distribuidos en 3 niveles.

Distribuciòn arquitectònica:
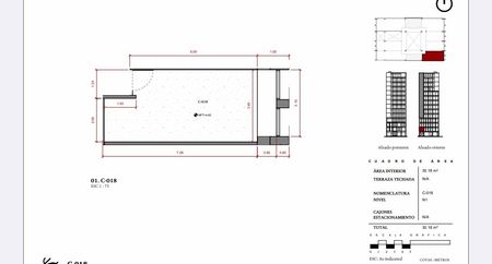
*Consultorio F
Nivel 01
30 m2
Precio con IVA $2,885,168

*Consultorio B
Nivel 01
43 m2
Precio con IVA: $3,935,932

*Consultorio G
Nivel 02
59 m2
Precio con IVA $5,346,484

Amenidades:
4 Nivel:
*Recepción con área de espera
*Lobby a triplealtura
*Recepción secundaria para amenidades
*Terrazas
* Área privada deco-work a doble altura
*Terraza after office
*Sala de juntas Máster para 12 personas
*Dos Zoom rooms de 4 personas
* Dos salas de juntas de 6 personas
*Comedor en roof top
*Rooftop para eventos
*Estudio de podcast

Servicios:
*Elevadores inteligentes
*Coffee bar
*Valet parking
*Concierge
*Baños de hombres y mujeres en cada nivel
*Biblioteca de objetos Cámaras de seguridad
*Acceso controlado mediante recepción
*Estacionamiento techado.

Fecha de entrega:
Julio 2028

Equipamiento:
*Se entrega en obra gris
*Cancel exterior
*Preparacion para A/C
*Salidas hidraulicas
* Salidas elèctricas

Cuota de mantenimiento:
$65. pesos x mt2

Metodo de pago:
Forma de pago:
Enganche 20% |
Mensualidades 20% diferido hasta junio 2028 | Finiquito 60%
Recurso propio y bancario.

Disponibilidad y precios sujetos a cambios sin previo aviso.

Amenities
  • Covered parking
  • Roof Garden
  • Terrace
  • Elevator
  • Private housing development
  • 24 Hour Security
  • Accessibility for elderly
  • Closed-Circuit Security System
  • Door man

Donner & Asociados

  • 322111162
  • ryan-donner-y-asociados.easybroker.com

Donner & Asociados

  • 322111162
  • ryan-donner-y-asociados.easybroker.com