Donner & Asociados

  • 322111162
  • ryan-donner-y-asociados.easybroker.com

Casa Residencial en Venta en Carmen Country Club.

Playa Palmas, Carmen

$9,122,095 For Sale

  • 3 Bedrooms
  • 3 Bathrooms
  • 1 Half Bathrooms
  • 2 Parking spaces
  • 344.23 m² total space
  • 250 m² Lot Size
  • 20 m Lot Length
  • 12.5 m Lot Width
  • 3 Floors
  • New Age
  • EB-ND2676 ID
Description

Casa en Venta en Residencias Playa Palmas, Country Club Olas. Ciudad del Carmen, Campeche.

CARACTERÍSTICAS:
Superficie del terreno: 250.00 m2 (12.50m x 20.00).
Superficie de construcción: 344.23 m2

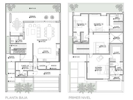
PLANTA BAJA:
- Sala.
- Comedor.
- Cocina con bodega para despensa.
- Baño para visitas.
- Cuarto de servicio con baño completo.
-Jardín.
- Terraza con área de comedor.
- Estacionamiento para dos vehículos.

PRIMER NIVEL:
- Recámara principal con closet vestidor y baño completo y balcón.
- 2 Recámaras con closet vestidor y baño completo cada una.
- Área de TV.
- Terraza.

SEGUNDO NIVEL:
- Área de lavado.
- Bodega.
- Closet de blancos.
- Área de tendido.

Amenities
  • Balcony
  • Cistern
  • Street parking
  • Garden
  • Terrace
  • Kitchen
  • Laundry Room
  • Private housing development
  • 24 Hour Security
  • Pool
  • Playground

Donner & Asociados

  • 322111162
  • ryan-donner-y-asociados.easybroker.com

Donner & Asociados

  • 322111162
  • ryan-donner-y-asociados.easybroker.com