Donner & Asociados

  • 322111162
  • ryan-donner-y-asociados.easybroker.com

Casa nueva en pre venta Cañadas del bosque Tres Marías

Bosques Tres Marías (Sección Departamentos), Morelia

$3,080,000 For Sale

  • 4 Bedrooms
  • 3 Bathrooms
  • 2 Parking spaces
  • 130 m² total space
  • 96 m² Lot Size
  • EB-UU6292 ID
Description

Terreno: 96 m²
Construcción: 130 m²

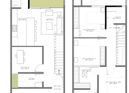
PLANTA BAJA:
• Cochera para 2 autos
• Sala - comedor con excelente iluminación natural
• Cocina integral moderna
• 1 recámara o estudio
• 1 baño completo
• Jardín trasero
• Cuarto de lavado

PLANTA ALTA:
• Recámara principal con vestidor y baño completo
• 2 recámaras secundarias con clóset y baño compartido

DETALLES GENERALES:
• Cisterna de 6,000 L
• Tanque estacionario y calentador de gas
• Accesorios de baño marca Urrea
• Pisos formato 50×100 Vitromex rectificado
• Cocina y clósets con acabados Panelart texturizado tipo madera

Preventa disponible — aprovecha precios especiales!

Amenities
  • Cistern
  • Street parking
  • Equipped Kitchen

Donner & Asociados

  • 322111162
  • ryan-donner-y-asociados.easybroker.com

Donner & Asociados

  • 322111162
  • ryan-donner-y-asociados.easybroker.com