Donner & Asociados

  • 322111162
  • ryan-donner-y-asociados.easybroker.com

Casa en Venta Las Fincas $24,864,000

Fraccionamiento Las Fincas, Santa Catarina

$24,864,000,000 For Sale

  • 3 Bedrooms
  • 3 Bathrooms
  • 1 Half Bathrooms
  • 3 Parking spaces
  • 516 m² total space
  • 427 m² Lot Size
  • 12.85 m Lot Width
  • EB-JA9226 ID
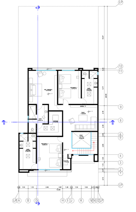
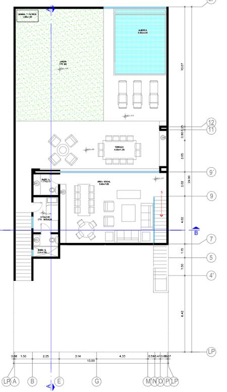
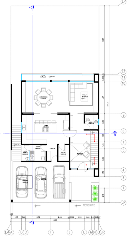
Description

Proyecto en preventa, con flexibilidad de hacer ajustes al diseño. Residencia de lujo de 3 niveles.

Terreno 427m2
Construcción 516m2

Cochera triple
3 recámaras, cada una con su baño vestidor
Sala - Comedor
Cocina
Cuarto de Servicio
Lavandería
Cuarto de TV
Area Social con terraza
Asador con amplio jardín

La casa está diseñada para el máximo aprovechamiento de espacios y luz. Cuenta con acabados de lujo como piso de mármol nacional, duela de ingeniería, puertas semisólidas de madera, placas de mármol o granito en los baños y mobiliario de baño.

Cuenta con block térmico y ventanas doble vidrio, así como preparación para climas, inteligencias y paneles solares.

Amenities
  • Covered parking
  • Garden
  • Laundry Room
  • Private housing development
  • 24 Hour Security

Donner & Asociados

  • 322111162
  • ryan-donner-y-asociados.easybroker.com