Donner & Asociados

  • 322111162
  • ryan-donner-y-asociados.easybroker.com

Casa en Venta Cholul, Mérida

Las Margaritas de Cholul, Mérida

$6,400,000 For Sale

  • 4 Bedrooms
  • 5 Bathrooms
  • 1 Half Bathrooms
  • 2 Parking spaces
  • 276 m² total space
  • 299 m² Lot Size
  • 30 m Lot Length
  • 10 m Lot Width
  • 2 Floors
  • Under Construction Age
  • $2,500 Expenses
  • EB-PN4909 ID
Description

Se busca proporcionar un ambiente seguro y de alta calidad para toda la familia. Ubicada en Cholul, la privada residencial de 26 casas que ofrecen una selección de diseños de viviendas, que se adaptan al estilo de vida de cada persona, permitiendo a los residentes elegir la opción que mejor se ajuste a sus necesidades y preferencias.

Las casas tienen un terreno desde 299 hasta 308 metros cuadrados, con una construcción desde 275 hasta 295 metros cuadrados, con un precio desde $5,325,000 hasta $6,400,000.

La privada se distingue por ofrecer un acceso controlado y una seguridad ininterrumpida las 24 horas del día, los 7 días de la semana. Es un espacio residencial donde la tranquilidad y la protección de los residentes son prioridad.

AMENIDADES: salón de área de juegos infantiles, cancha de pádel, salón de fiestas,

SERVICIOS: acceso controlado, vigilancia 24/7.

Fecha de Entrega: Septiembre 2025
Segunda Etapa, Modelo D

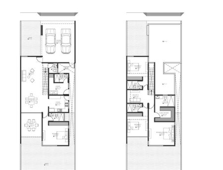
Distribución de la Casa.

PLANTA BAJA:
Garaje Techado Para 2 Autos
Sala
Comedor
Cocina Integral con Barra
Alacena
Medio Baño
Habitación con Baño y Closet Semi Vestido
Cuarto de Servicio con Baño
Terraza Techada
Alberca.

PLANTA ALTA:
Habitación Principal con Baño y Closet Vestidor Semi Vestido
2 Habitaciones con Baño y Closet Semi Vestido
Sala de TV.

SE ENTREGA CON: Carpintería en Cocina, Tanque de Gas Estacionario, Carpintería en Closets de Habitaciones en Planta Alta, Fijo de Cristal Templado en Baños.

REQUISITOS:
Apartado: $10,000
Enganche: 20%
Crédito Bancario y Recurso Propio.

El contrato se deberá firmar a los 7 días posteriores al apartado.

Precio Vigente al 08 de Agosto 2025
Disponibilidad y precio sujeto a cambio sin previo aviso. Favor de consultar precio actual con su asesor.
El precio de la publicación no incluye gastos notariales, impuestos, gastos de solicitud de créditos, avalúos, cuotas de mantenimiento ni gasto de administración que se genere.
Las imágenes ilustrativas son una guía gráfica parecida al producto final y pueden tener ajustes y modificaciones sin previo aviso.

Amenities
  • Cistern
  • Covered parking
  • Street parking
  • Terrace
  • Accessibility for elderly
  • Handicap accessible
  • Fitted Kitchen
  • Laundry Room
  • Double story
  • Private housing development
  • Door man
  • 24 Hour Security
  • Pool
  • Playground
  • Multipurpose room
  • Pets allowed
  • Smoking allowed
  • Garage
  • Closed-Circuit Security System
  • Kitchen
  • Patio
  • Ground floor bedroom

Donner & Asociados

  • 322111162
  • ryan-donner-y-asociados.easybroker.com

Donner & Asociados

  • 322111162
  • ryan-donner-y-asociados.easybroker.com