Donner & Asociados

  • 322111162
  • ryan-donner-y-asociados.easybroker.com

CASA EN VENTA EN CLUB DE GOLF MERIDA

Tamanché, Mérida

$11,500,000 For Sale

  • 4 Bedrooms
  • 6 Bathrooms
  • 1 Half Bathrooms
  • 3 Parking spaces
  • 499.41 m² total space
  • 573 m² Lot Size
  • 2 Floors
  • Under Construction Age
  • EB-UR8913 ID
Description

TERRENO: 572.46 METROS CUADRADOS
CONSTRUCCIÓN: 499.41 METROS CUADRADOS
PRECIO: $11,500,000

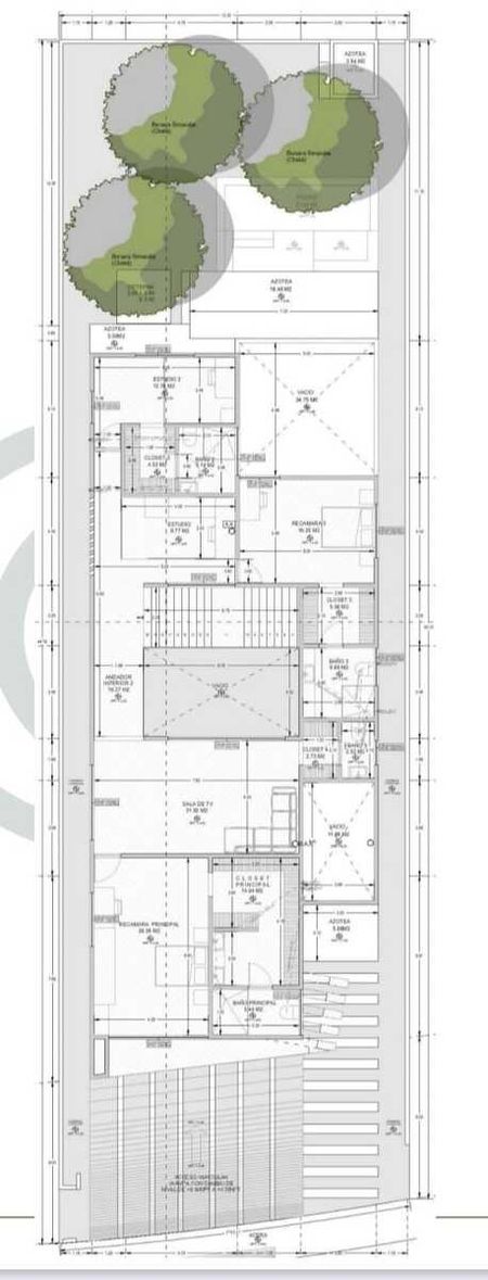
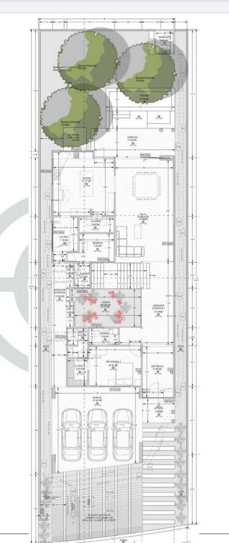
DISTRIBUCIÓN PLANTA BAJA
• Doble altura en comedor
• Casa sobre avenida principal
• Family room de 7.6 x 4.20
• Estudio / oficina
• Cocina con cuarzo y carpintería equipada con parrilla, campana, horno de convección, horno de microondas, isla central, área de alacena
• Cochera techada para 3 autos
• Acceso peatonal independiente
• Vestíbulo / recibidor
• Recamara 1 con closet vestidor con carpintería premium, baño completo con espejos iluminados, muebles bajo lavabos con carpintería, baño forrado en mármol y cancel de cristal templado
• Jardín interior en zona de sala comedor
• Sala y comedor con vista al jardín y alberca
• Terraza con pérgola de acero
• Amplia alberca con chapoteadero, luz, equipo de filtrado y piso veneciano
• Lavandería techada con acceso desde la cocina
• Área de closet exterior
• Cuarto de servicio con baño completo
• Jardín posterior con pasto americano
• Pasillos laterales preparación para paneles solares
• Climatizada

DISTRIBUCION PLANTA ALTA
• Sala de Tv con barandal de cristal templado y hermosa vista al jardín
• Medio baño
• Closet de blancos
• Oficina amplia
• Recámara principal amplia con closet vestidor con carpintería premium, diseñado con espacio para colgar prendas largas, cajones, espacio para bolsas, así como gran espacio para zapatos, baño con espejos iluminados, forrado de mármol, tina de lujo y cancel de cristal templado en baños
• Recámaras secundarias (2) con vestidor con carpintería premium, baños forrados en mármol, canceles de cristal templado en áreas húmedas, espejos iluminados.

*La información en esta ficha proviene de fuente confiable, sin embargo, está sujeta
a cambios de disponibilidad y precio u otras condiciones sin previo aviso.
*El precio publicado no incluye gastos notariales, avaluó e impuestos de adquisición,
el cual se determinará en función de los montos variables de conceptos de crédito y
notariales que deben ser consultados con los promotores de conformidad con lo
establecido en la NOM-247-SE-2022.

Amenities
  • Balcony
  • Cistern
  • Covered parking
  • Street parking
  • Garage
  • Garden
  • BBQ grill
  • Patio
  • Sprinkler irrigation
  • Terrace
  • Accessibility for elderly
  • Air conditioning
  • Storge Unit
  • Equipped Kitchen
  • Service Room
  • Double story
  • Study
  • Private housing development
  • Hydropneumatic
  • Office
  • Door man
  • Ground floor bedroom
  • 24 Hour Security
  • Pets allowed
  • Smoking allowed
  • Pool
  • Playground
  • Padel courts
  • Tennis court
  • Fire pit
  • Gym
  • Games Room
  • Multipurpose room

Donner & Asociados

  • 322111162
  • ryan-donner-y-asociados.easybroker.com

Donner & Asociados

  • 322111162
  • ryan-donner-y-asociados.easybroker.com