Donner & Asociados

  • 322111162
  • ryan-donner-y-asociados.easybroker.com

CASA VENTA MÉRIDA, UNA PLANTA, REAL MONTEJO, ENTREGA SEPT / DIC 2025.

Real Montejo, Mérida

$3,247,500 For Sale

  • 2 Bedrooms
  • 2 Bathrooms
  • 2 Parking spaces
  • 116 m² total space
  • 261.7 m² Lot Size
  • 21.8 m Lot Length
  • 12 m Lot Width
  • New Age
  • NO APLICA Expenses
  • EB-RR5278 ID
Description

Disfruta de la comodidad de vivir en una comunidad con espacios Alzare Residencial es un desarrollo de casas del rango residencial, dentro de la colonia Real Montejo, ubicada al inicio de la zona Norte de Mérida, teniendo accesos directos a diversos puntos y salidas a la ciudad.

El Modelo 116 agradable por su distribución y habitaciones en planta alta, nos da la libertad en toda la planta baja de gozar de espacios cómodos para toda la familia.

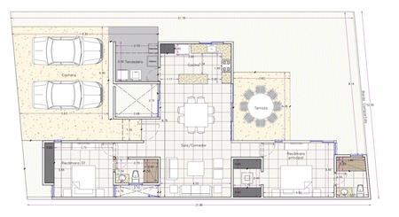
DISTRIBUCIÓN:
Caracteristicas Mod Aurea un piso:
Cochera para 2 autos
Sala
Comedor
Cocina con Isla
Terraza sin techar
Recamara principal con closet vestidor y baño completo
Recamara secundaria con closet y baño completo
Pasillo de servicio
Cuarto de lavado techado
Área para jardín interior

* Incluye 2 aires acondicionados: 1 de 18,000 btus y 1 de 12,000 btus sin instalación

Adicionales (costo extra)
- Cochera Techada $ 199,300.00
- Terraza Techada $ 95,000.00
- Piscina $ 164,300.00
-Recamara Jr Planta Alta 3ra recámara $ 264,000N
-Recamara principal grande Planta Alta 4ta recámara$ 295,000MN
-Escalera Planta Alta $ 253,500MN

Entrega Inmediata:
Lote 713 $3,247,500 MN sin opción de agregar piscina

Entregas Diciembre 2025:
Lotes 703, 708, 711 $3,247,500 MN ( Opción de agregar piscina)
Lotes 701 y 702 $3,247,500 MN Sin opción de piscina
Lote 709 $3,411,800 MN con piscina incluida

Apartado: 10,000 vigente 7 días naturales.
Enganche: 10%

*Cambio de precio y disponibilidad sin previo aviso
*Consulta más información con tu asesor

Amenities
  • School
  • Hospitales near
  • Parques & Areas verdes
  • Beaches ( less than 45" )
  • Shops
  • Restaurants
  • Merida Noth
  • Balcony
  • Garden
  • Accessibility for elderly
  • Fitted Kitchen
  • Double story
  • areas for investing
  • Internet (EZ-Hook up)
  • Pets allowed
  • Golf course, less than 30"
  • Tennis court less than 20"
  • Gym
  • Single story

Donner & Asociados

  • 322111162
  • ryan-donner-y-asociados.easybroker.com

Donner & Asociados

  • 322111162
  • ryan-donner-y-asociados.easybroker.com