Donner & Asociados

  • 322111162
  • ryan-donner-y-asociados.easybroker.com

Casa en Venta cerca de Playa con Alberca Playa del Carmen

La Guadalupana, Playa del Carmen

$4,200,000 For Sale

  • 165 m² total space
  • 312.5 m² Lot Size
  • New Age
  • EB-UJ8100 ID
Description

Casa en Venta cerca de Playa– Casa Residencial con Alberca Privada en Fraccionamiento privado con Cenotes en Playa del Carmen Quintana Roo

Descubre Casa S33, una propiedad residencial moderna y funcional en Playa del Carmen, Quintana Roo, dentro de una zona de alta plusvalía y gran proyección en la Riviera Maya, Fraccionamiento con Cenote majestuoso en la entrada y varios más dentro del fraccionamiento. Ademas Barda perimetral y caseta de vigilancia 24/7. Y 3 km de andadores peatonales de 4 m de ancho.
Servicios subterráneos. La residencia cuenta con espacios diseñados para el confort, acabados de calidad y alberca privada, es ideal como hogar familiar, inversión inmobiliaria o casa vacacional.

Características de la Propiedad

Terreno: 312.5 m²
Construcción: 165 m²
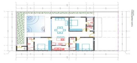
Distribución en 1 planta
3 recámaras amplias
3.5 baños con sanitarios de una sola pieza
Cocina equipada con carpintería incluida
Área de lavandería
Alberca privada
Estacionamiento

Precio de inversión: $4,200,000 MXN

Ventajas de la Ubicación
Ubicada en zona residencial tranquila y en crecimiento en Playa del Carmen

A 7 minutos de playa Xcalacoco y del centro de la ciudad
Cercanía a supermercados, centros comerciales, escuelas y universidades

Conectividad con carretera Cancún – Tulum y principales accesos de la Riviera Maya

Ideal para:
Familias que buscan una casa con espacio, seguridad y amenidades privadas
Inversionistas interesados en renta a largo plazo o vacacional (Airbnb, Booking)
Quienes desean una segunda residencia en el Caribe para disfrutar fines de semana y vacaciones

Beneficios Clave
Alberca privada, perfecta para disfrutar
Plusvalía asegurada en Playa del Carmen, uno de los destinos con mayor crecimiento inmobiliario en México
Diseño moderno y funcional con acabados de calidad

Excelente relación precio–valor–ubicación

***Aceptamos créditos bancarios e Infonavit y te apoyamos en el proceso


¡Contáctanos hoy mismo y agenda una visita a Casa S33!

Vive, invierte y disfruta de la Riviera Maya en una casa con todas las comodidades.
.
.
*Propiedades sujetas a disponibilidad.
*Precios sujeto a cambios sin previo aviso.
*El envío de esta ficha no compromete a las partes a la suscripción de ningún documento legal.
*La información y medidas son aproximadas y deberán ratificarse con la documentación pertinente.

Donner & Asociados

  • 322111162
  • ryan-donner-y-asociados.easybroker.com