Donner & Asociados

  • 322111162
  • ryan-donner-y-asociados.easybroker.com

Casa en la Colonia Jardines Miraflores

Jardines de Miraflores, Mérida

$6,500,000 For Sale

  • 3 Bedrooms
  • 2 Bathrooms
  • 5 Parking spaces
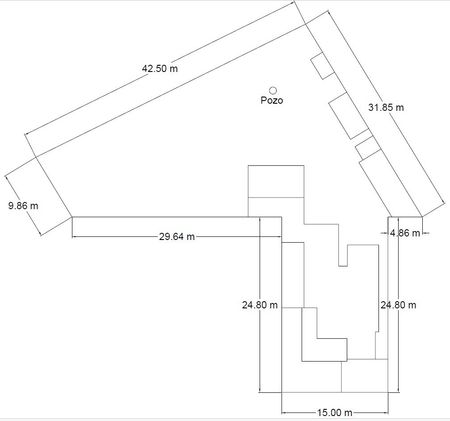
  • 255.43 m² total space
  • 1,255.12 m² Lot Size
  • 15 m Lot Width
  • EB-TA3598 ID
Description

Oportunidad Única hermosa casa en la Ciudad de Mérida
Características principales:
• Ubicada en el Fracc. Jardines Miraflores, una zona tranquila y con un crecimiento en plusvalía asegurado.
• Tamaño:
o Area total: 1,255.12 m2
o Area con techo de concreto: 253.43 m2
o Area techada con lamina galvanizada o galvateja: 113.50 m2
o Area techada con lamina de fibrocemento: 13.20 m2
• Habitaciones:
o 3 habitaciones amplias. Dos de las habitaciones cuentan con amplios closets vestidos con madera.
• Otras áreas:
o 1 habitación con acceso desde la calle ideal para oficina en casa o consultorio.
o 2 espacios de almacenamiento totalmente cerrados.
o 1 espacio de almacenamiento semi abierto.
o Lavadero techado.
o Terraza en la parte posterior techada.
• Baños: 2 baños completos.
• Sala y Comedor: Espacios amplios y luminosos.
• Cocina: Amplia cocina vestida con puertas de madera.
• Estacionamiento: Cuenta con espacio para al menos 5 automóviles.
• Patio posterior: Cuenta con arboles frutales y de ornato, asi como un pozo para el riego de estos. Gran espacio para desarrollar el proyecto que desee. Amplia Terraza con una sección techada.
• Transporte: Servicio de transporte público a 10 mts de la puerta. Facilidad de acceso a las principales calles y avenidas.
• Comodidades Cercanas: hospitales, centros comerciales, escuelas y parques.

Amenities
  • Balcony
  • Cistern
  • Covered parking
  • Street parking
  • Terrace
  • Accessibility for elderly
  • Handicap accessible
  • Kitchen
  • Equipped Kitchen
  • Laundry Room
  • Study
  • Office
  • Pets allowed
  • Smoking allowed

Donner & Asociados

  • 322111162
  • ryan-donner-y-asociados.easybroker.com

Donner & Asociados

  • 322111162
  • ryan-donner-y-asociados.easybroker.com