Donner & Asociados

  • 322111162
  • ryan-donner-y-asociados.easybroker.com

Casa en venta en Senderos Norte Mayakoba, Playa del Carmen

Playa del Carmen, Playa del Carmen

$8,137,500 For Sale

  • 3 Bedrooms
  • 3 Bathrooms
  • 1 Half Bathrooms
  • 2 Parking spaces
  • 285 m² total space
  • 163.7 m² Lot Size
  • 2 Floors
  • New Age
  • $1,741.77 Expenses
  • EB-RD9485 ID
Description

Proyecta un diseño atemporal de colores neutros donde destaca el muro de piedra en la fachada y lambrines de madera en la fachada a doble altura.

El ventanal frontal permite el acceso a la terraza y permite el ingreso de luz natural y ventilación.
La combinación de la orientación junto con las celosías permite generar sombra en zonas mas expuestas a la ganancia térmica.

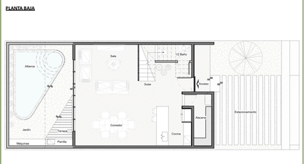
El proyecto consta de Planta Baja, Primer Nivel y Azotea con una altura total de 8.3 mts al muro mas alto, 285 m2 de construcción y 25 m2 de acceso con estacionamiento.

La Planta baja de la casa cuenta con 80 m2 internos habitables, 14m2 de alberca y 25 m2 de acceso con estacionamiento. Se integran los espacios de sala, comedor, cocina, alacena, medio baño, área de alberca, jardín, zona de grill, cuarto de máquinas y espacio para dos automóviles en la parte frontal.

En Primer Nivel contamos con 79 m2 interiores habitables y 10m2 de terrazas. En este nivel se configura un cuarto de lavado, bodega y tres habitaciones con baño, vestidor y dos de ellas con terraza.

En Azotea contamos con 102 m2 de construcción en losa y es un espacio únicamente de
servicio para colocación de las condensadoras para los aires acondicionados y tanque de agua.

En cuanto a infraestructura, se proyecta las redes hidrosanitarias, eléctricas, y los servicios de
voz hacia lastomas generales ya existentes en el fraccionamiento.
-----------
AMENIDADES EN EL FRACCIONAMIENTO
casa club, seguridad, alberca, jardines, chanchas , gym, terraza, senderos para bicicleta o caminar, asoleadero, parque para perros, cendero de los cenotes, juegos para niños, estacionamiento para visitas
---------
FORMA DE PAGO :
30% de enganche + 40% durante + 30% en entrega

---------------NICOS
Para visita o dudas, envianos un mensaje o WhatsApp

Amenities
  • Balcony
  • Street parking
  • Garden
  • Terrace
  • Air conditioning
  • Kitchen
  • Laundry Room
  • Double story
  • Private housing development
  • 24 Hour Security
  • Pets allowed
  • Pool
  • Playground
  • Tennis court
  • Gym

Donner & Asociados

  • 322111162
  • ryan-donner-y-asociados.easybroker.com

Donner & Asociados

  • 322111162
  • ryan-donner-y-asociados.easybroker.com