Donner & Asociados

  • 322111162
  • ryan-donner-y-asociados.easybroker.com

Carretera Nacional, con 4 recámaras

Laderas Abedul, Monterrey

$17,000,000 For Sale

  • 4 Bedrooms
  • 5 Bathrooms
  • 1 Half Bathrooms
  • 3 Parking spaces
  • 506 m² total space
  • 382 m² Lot Size
  • 2 Floors
  • Under Construction Age
  • EB-TW4940 ID
Description

Casa en PRE-Venta en Carretera Nacional en zona del Uro
Laderas de Abedul: fraccionamiento privado, acceso controlado, cámaras de circuito cerrado, palapa, alberca y área de juegos infantiles.

Terreno: 382.1 m2
Construcción: 506.33 m2
90 m2 de área para jardín
Terreno plano con preciosas vistas a la sierra.

Cochera para 3 vehículos
4 recámaras en PA.
Opción de recámara u oficina con baño completo en PB
opción de oficina o 5ta recámara en PB
+ cuarto de servicio con baño completo y acceso independiente
Pisos de mármol.
Bodega, cuarto de herramientas, terraza techada lavandería en PA.


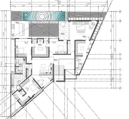
En Planta Baja:
Cochera para 3 autos
Bodega, cuarto de herramientas
Recibidor doble altura
Sala y Comedor con amplios ventanales de piso a techo.
Baño para visitas
Amplia Cocina con espacio para isla, antecomedor y family room.
Estancia
Recámara u oficina con baño completo.
Terraza techada con espacio para isla y barra para asador.
90 m2 para jardín.

Planta Alta:
4 recámaras, 2 de ellas comparten baño y amplio vestidor,
La recámara principal con tina de baño.
Estancia con doble altura e iluminación natural indirecta.
Lavandería
Cuarto de servicio con baño completo y acceso por escalera de caracol a pasillo.
Closet de blancos.
Mezzanine para juegos y/o área de tareas


Incluye:
Palapa
Cocina
Closets
Climas
Detalles en fachada con cantera y/o piedra natural
Plafones de panel de yeso con iluminación indirecta a 3.0 m altura.
Cancelería calidad premium serie 80.
Carpintería de puertas de banak.
Pisos de mármol nacional gran formato.

Se puede incluir la alberca con costo adicional de $750,000 pesos

Amenities
  • Balcony
  • Covered parking
  • Street parking
  • Garden
  • Patio
  • Terrace
  • Air conditioning
  • Heating
  • Kitchen
  • Fitted Kitchen
  • Laundry Room
  • Double story
  • Study
  • Private housing development
  • Office
  • Ground floor bedroom
  • 24 Hour Security
  • Pets allowed

Donner & Asociados

  • 322111162
  • ryan-donner-y-asociados.easybroker.com