Donner & Asociados

  • 322111162
  • ryan-donner-y-asociados.easybroker.com

BODEGA INDUSTRIAL EN VENTA EN APODACA CERCA DEL AEROPUERTO

Aeropuerto Internacional Mariano Escobedo, Apodaca

$23,840,000 For Sale

  • 6 Parking spaces
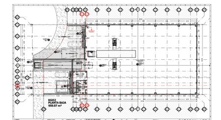
  • 999 m² total space
  • 1,192 m² Lot Size
  • New Age
  • EB-UK6679 ID
Description

BODEGA INDUSTRIAL EN VENTA EN APODACA CERCA DEL AEROPUERTO
Terreno: 1,192m2
Construcción: 999m2
m2 bodega: 920m2
m2 oficinas: 78m2
Niveles de oficinas: 2
Altura total: 12.43m2
Cajones de estacionamiento: 6
Doble acceso con rampa*

Tiempo de entrega 2 meses
Especificaciones:
• Oficinas y areas de servicio
• Preparación en cimentacion para grua viajera hasta 25 Ton
• Cisterna 10,000lts equipada
• Iluminación LED
• Estacionamiento exterior
• Firme de concreto 15cm de espesor resistencia 250 kg/cm2
•9 mts de altura libre interior
• Anden de carga con rampa niveladora
• Servicios a pie de terreno, SADM y CFE
• Parque cerrado con caseta de vigilancia y control de acceso
• Cubierta con estructura de lamina con tragaluces
y colchoneta

Amenities
  • Platform
  • Street parking
  • 24 Hour Security

Donner & Asociados

  • 322111162
  • ryan-donner-y-asociados.easybroker.com