Donner & Asociados

  • 322111162
  • ryan-donner-y-asociados.easybroker.com

BODEGA EN RENTA EN APODACA

Apodaca Centro, Apodaca

$171,826 For Rent

  • 3 Parking spaces
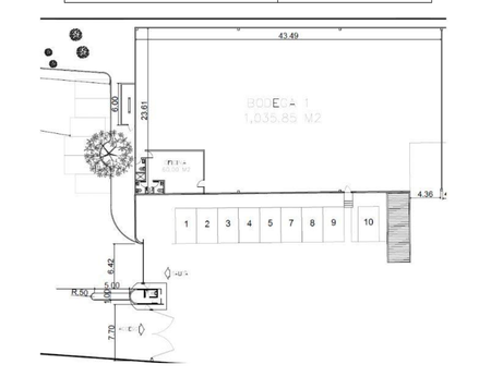
  • 1,035 m² total space
  • 1,035 m² Lot Size
  • New Age
  • EB-UB1003 ID
Description

BODEGA EN RENTA EN APODACA CARLOS SALINAS DE GORTARI
1035m2
$171,826 Total (3 DISPONIBLES)

$130.00 pesos por metro cuadrado
10% de mantenimiento
Ambas cantidades mas IVA

MATERIAL DE PARED:
Block concreto con acabado cara de piedra de 15 cm (5.9")
a 3m (9.84 ft.) de altura y el resto estructural Lámina
TR101 Cal. 26 Galvanizada
MATERIAL DE TECHO:
KR18 Cal. 24 y lámina traslucida, Aislante térmico lona 2"
ALTURA MINIMA :
7 metros
ALTURA MAXIMA :
11.40 metros
PISO:
Concreto 15 cms de espesor, resistencia 200kg/cm2
TIPO DE CONSTRUCCION:
Construcción a base elementos de concreto y estructura de acero
SEGURIDAD:
Caseta de Vigilancia
Vigilancia CCTV (Cámaras de alta definición, plumas de acceso)
Andenes y rampas

Amenities
  • Platform
  • Covered parking
  • Street parking

Donner & Asociados

  • 322111162
  • ryan-donner-y-asociados.easybroker.com