Donner & Asociados

  • 322111162
  • ryan-donner-y-asociados.easybroker.com

Bodega en Cuautitlan izcalli Carreteros no 8 Industrial Xhala

Parque industrial Xhala, Cuautitlán Izcalli

$195,000 For Rent

  • 1,492 m² total space
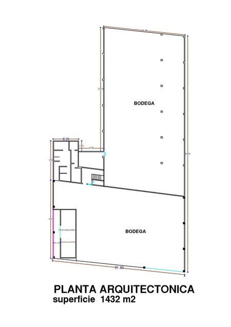
  • 1,432 m² Lot Size
  • 55.65 m Lot Length
  • 31.3 m Lot Width
  • EB-TV8045 ID
Description

Excelente bodega en renta en Carreteros 8, Industrial Xhala, 54750 Cuautitlán Izcalli, Méx.
Renta $195,000 mas IVA

https://maps.app.goo.gl/m7eXzknAGLCZBiJi9
techumbre 1ra seccion (entrada) a 2 aguas con una altura 6 m altura lecho bajo y 9 m altura lecho alto con lámina pintro R 101 calibre 22 y 30% lámina translúcida.
• Techumbre 2da seccion (atrás) tipo arco con una altura de 7,50 m con lámina ondulada cal 22 y 30% de lámina translúcida
•No tiene andenes
•Soporta 260 kg/cm2
•Concreto simple de 250
• Las bodegas No tienen luz , el arrendatario tendrá que hacer su contrato de luz con CFE con el tipo de energía requerida ya sea bifásica o trifasica

La parte frontal es un bodega nueva , terminada
Son 1432 metros en total de bodega , adicional en primer nivel se tiene el área de oficina con 2 baños en el primer nivel y uno en la planta baja
En el area de bodega cuenta con baños y regaderas
Y cisterna de 5000 litros
Frente de 31.30 como se ve en el croquis largo de 55.65

La altura de la bodega es de 9 metros en su parte mas alta.

Donner & Asociados

  • 322111162
  • ryan-donner-y-asociados.easybroker.com

Donner & Asociados

  • 322111162
  • ryan-donner-y-asociados.easybroker.com