Donner & Asociados

  • 322111162
  • ryan-donner-y-asociados.easybroker.com

Bodega en CB PARK - PREVENTA

Ucu, Ucú

$8,575,000 For Sale

  • 650 m² total space
  • 2,500 m² Lot Size
  • 100 m Lot Length
  • 25 m Lot Width
  • New Age
  • EB-QV0900 ID
Description

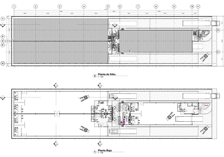
Preventa de 3 Bodegas en CBPARK en Lote industrial de 2,500 m2 con espacios modulares, cerca de la entrada, excelente ubicación y adaptados de acuerdo con las necesidades de tu empresa.

Ubicado estratégicamente en el corredor industrial Hunucmá, a pie de la carretera Mérida-Tetiz, es la zona de mayor crecimiento industrial en Yucatán. Cuenta con rápidos accesos viales a los principales puntos logísticos de la ciudad, aeropuerto, puerto de altura, centros comerciales, hospitales, universidades, entre otros.

Respaldado por especialistas del más alto nivel y experiencia, es la mejor opción para la instalación de empresas de impacto global gracias a nuestros espacios industriales con toda la infraestructura necesaria para una óptima operación. Garantiza: seguridad y vigilancia 24/7, libre elección de constructora, grandes rendimientos, plusvalía y servicios a pie de lote.

Es un parque Industrial constituido bajo el régimen de propiedad en condominio. Cuenta con permisos Federales, Estatales y Municipales que garantiza la certeza jurídica en la adquisición de la tierra industrial y renta de naves industriales; además de ofrecer los servicios más completos para garantizar al máximo el nivel de operatividad y funcionabilidad.

+ De 195,000 m2 de Pavimento asfaltico de alta especificación.
+ De 28,000 m2 Estacionamientos para tractocamiones.
+ De 20,000 m2 de cajones de estacionamientos en todo el parque.
+ De 17,000 m de vialidades con 14 m de ancho.
Servicio de Red Hidráulica de agua clorificada para uso sanitario.
Servicio de Red Eléctrica subterránea de media tensión a 34.5 kV.
Alumbrado Público con luminaria tipo LED.
Barda Perimetral 2.5 m de altura y 7,100 m.
+ De 236,000 m2 de áreas verdes y jardines.
Paradero de autobuses a pie de carretera.
Drenaje pluvial en vialidades y estacionamientos mediante pozos de absorción.
Red contra incendios mediante hidrantes en áreas comunes.
Red de voz y datos mediante fibra óptica.

INSFRAESTRUCTURA:
Redes:
- Red eléctrica de media tensión en 34.5 kV, conectada a la subestación eléctrica de Hunucmá.
- Red hidráulica subterránea, mediante pozos de abastecimiento y una red interna de distribución.
- Red de fibra óptica (voz y datos).
- Red contra incendios mediante hidrantes según la norma NPFA 13, 14, 20 y 25.

Nota: todos los servicios anteriores son subterráneos y llegan a pie de cada lote industrial. Con excepción de la red contra incendios.

DRENAJE:
- Drenaje pluvial mediante pozos de absorción y zanjas recolectoras, distribuidos en las vialidades y áreas de estacionamiento.
- Descargas residuales mediante biodigestores, de acuerdo con la norma de SEMARNAT, NOM-001-SEMARNAT-1996

SERVICIOS:
- Alumbrado público.
- Gas natural disponible por el suministrador de la zona.
- Barda perimetral alrededor de todo el parque.
- Áreas verdes.

VIALIDAD:
- Cajones de estacionamiento para vehículos compactos.
- Amplias vialidades con pavimento de alta especificación.

SEGURIDAD:
- Caseta de Control de acceso.
- Centro de monitoreo CCTV (circuito cerrado de video vigilancia).
- Vigilancia permanente 24 horas, 7 días de la semana.
- Cámaras de video vigilancia distribuidos en todo el Parque.
- Programa interno de Protección civil.

SERVICIOS GENERALES:
- Gasolinera
- Área Comercial
- Estacionamientos interior y exterior
- Oficina de administración propia
- Mantenimiento de áreas comunes
- Sistema de riego de áreas verdes
- Recolección de basura
- Paradero de autobuses

Área de bodega: 650 m2
Precio por unidad: $8, 575 ,000 mxn
Con financiamiento directo sin intereses.
Dando 30% de enganche y 70% a doce meses sin intereses.

Folio Interno TM: 2400

Amenities
  • Covered parking
  • Street parking
  • Garden
  • Storge Unit
  • Closed-Circuit Security System
  • Office
  • 24 Hour Security

Donner & Asociados

  • 322111162
  • ryan-donner-y-asociados.easybroker.com

Donner & Asociados

  • 322111162
  • ryan-donner-y-asociados.easybroker.com