Donner & Asociados

  • 322111162
  • ryan-donner-y-asociados.easybroker.com

BODEGA AAA BICENTENARIO EN PRE-RENTA 6,623.53

Ampliación Ciudad Industrial, Umán

$130 per m² For Rent

  • 16 Parking spaces
  • 6,623.53 m² total space
  • 11,993.14 m² Lot Size
  • 100 m Lot Length
  • 120 m Lot Width
  • Under Construction Age
  • 5% Expenses
  • EB-TD3460 ID
Description

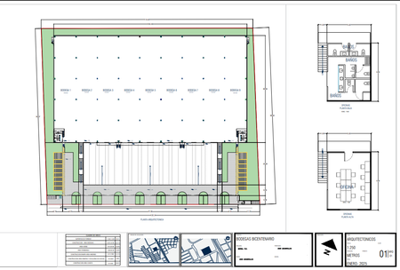
"BODEGAS AAA BICENTENARIO" EN PRE-RENTA DESDE 6,623.53M2 ENTREGA ENERO 2026, CUENTA CON:

****INFORMACIÓN GENERAL****

12 DE ADENES DE CARGA Y DESCARGA CON CORTINA METALICA
4 ANDENES MINI-DOCK
2 RAMPAS PARA MONTACARGAS
https://m2paranegocios.easybroker.com/property/nave-industrial-en-renta-de-3-000-m2?agent=assod_1
2 BAÑOS HOMBRES Y MUJERES
2 OFICINAS EN PLANTA ALTA

**DIMENSIONES GENERALES**
AREA DE TERRENO: 11,993.14 M2
FONDO BODEGA: 60.60 M2
FRENTE BODEGA: 109.30 M2
AREA DE BODEGA: 6,623.53 M2
ALTURA LIBRE A RODILLA: 9.50M2
ALTURA LIBRE A CUBIERTA: 11.29 M2
CAJONES DE ESTACIONAMIENTO: 16
AREA VERDE.

**PISO INTERIOR:
FIRME DE CONCRETO F´C= 250 KG/CM2 DE ESPESOR 15CM ACABADO PULIDO (INTERIOR BODEGA)

**INSTALACION ELECTRICA:
ALIMENTACION ELECTRICA, TRANSFORMADOR DE 150 KVA, BIFÁSICO EN BAJA TENSION Y PREPARACIÓN DE MEDIA TENSIÓN.

**INSTALACION HIDROSANITARIA:
BIODIGESTOR HORIZONTAL 1400LTS, AREA DE BAÑOS Y OFICINA.

**POZO DE ABASTECIMIENTO CON BOMBA SUMERGIBLE
TINACO 450 LTS EN AREA DE BAÑOS Y OFICINA, CASETA
BIODIGESTOR HORIZONTAL 600LTS, PARA CASETA.

***ENTREGA ENERO 2026***

CONSULTAR CON TU ASESOR LAS CONDICIONES DE RENTA.

Amenities
  • Platform
  • Cistern
  • Street parking
  • Storge Unit
  • Office
  • Ramps
  • 24 Hour Security
  • Handicap accessible

Donner & Asociados

  • 322111162
  • ryan-donner-y-asociados.easybroker.com